
M7N 型机械密封
产品简介:
单端面 / 非平衡性 / 任意旋向 / 符合DIN24960标准,M7N 系列应用广泛,互换性强,密封环非紧嵌入,替换方便。推环由传动搭子卡住,防止弹簧脱落。静环可以限位,弹簧行程受限,避免碳环过度磨损。
运行参数:
d1=14…200mm 0.55”…8”,p1=16(25)bar 230(360)PSI,t=-50…220℃,-58F…430o,Vg=20m/s 66ft/s,轴向窜动量:
| d1 up to 25 mm: | ±1.0mm |
| d128 to 63 mm: | ±1.5mm |
| d1 65 mm and above: | ±2.0mm |
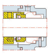
M74N多弹簧结构
静止环

扭矩传递
|
d1>100mm 由四只螺钉拧入凹坑。 |
|
|
|
|
M7F带螺纹泵 d1 max. 100mm M74F多弹簧带螺纹泵 d1 =14…200mm |
M7 S2键驱动 d1 max. 100mm M74 S2多弹簧键驱动 d1 =28…200mm |
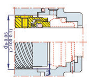
M78N 旋转环用镶嵌结构 d1 =18…100mm t max. 180℃ |
